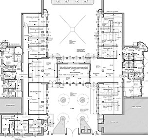
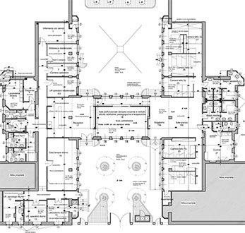
Comunità Terapeutiche per il recupero dei tossicodipendenti Associazione Saman, Milano via Palmieri (1999) - Milano via Ortica (2001), Belgioioso Pavia (2002), Serra Riccò Genova

2002-2006

La Saman è un'Associazione no-profit, fondata da Mauro Rostagno nel 1981, che si occupa di prevenzione, recupero e reinserimento socio-lavorativo di soggetti tossicodipendenti. A seguito di finanziamenti pubblici a partire dalla fine degli anni ‘90 si è potuto procedere al recupero delle numerose sedi dell’associazione. Ciascun intervento, oltre a rispondere alle specifiche esigenze funzionali ed al relativo accreditamento presso le strutture sanitarie locali, si è preoccupato di interpretare lo spirito dell’associazione. Gli interventi hanno valorizzato l’approccio alternativo e laico ai temi legati al disagio e alla dipendenza che caratterizza l’Associazione Saman, inserendo il processo di recupero edilizio nel percorso di reinserimento sociale degli ospiti delle comunità terapeutiche. L'attenzione rivolta alle singole persone, unitamente all’ approccio libertario al trattamento terapeutico, rivendica la creazione di uno spazio accogliente e flessibile, l'utilizzo di terapie "dolci", di tecniche di meditazione, ci ha spinto alla realizzazione di ambienti caldi e personalizzabili.

Credits

Nel corso della fase progettuale e realizzativa degli interventi si è operato in diverse compagini insieme a vari professionisti.

 

Collaboratori: arch. Piero Nebiolo, arch. Francesco Baglione, ing. Mario Ferrari, geom. Vittorio Brusca

© 2020 Lamberto Rossi Associati, via Telesio 17, 20145, Milano (MI), Italy - Diritti Riservati

Sito web creato da Giulia Margherita Bernardi (giuliam.bernardi@gmail.com)

© 2020 Lamberto Rossi Associati - Diritti Riservati

Sito web creato da Giulia Margherita Bernardi