Campus Universitario di Forlì

Il Progetto converte l’ospedale di Forlì - un complesso a padiglioni del primo Novecento al limite del centro storico - in campus universitario.

E’ concepito come una grande cerniera urbana, un "ponte" tra nucleo antico e città moderna ma anche polo centrale di un sistema “a rete” che comprende altri poli primari e secondari distribuiti nella città. La funzione di “ponte" tra antico e moderno ha anche una connotazione semantica come "luogo della commistione" per cui la parte nuova con la didattica e l’aula magna rappresenta un'estensione, coerente come impianto ma figurativamente autonoma, dell'ospedale. Da un lato, verso la città storica, viene restaurato il complesso a padiglioni eliminando le addizioni improprie e ripristinando la trasparenza tra i corpi di fabbrica e la gerarchia originaria tra le corti. Dall’altro, una nuova strada che è anche la dorsale di alimentazione impiantistica del sistema, a forma di “trefolo”, serve i nuovi blocchi della didattica e si conclude con l’aula magna: nuovo ingresso al campus dalla città contemporanea. La metafora architettonica del "trefolo" è la rappresentazione delle diverse funzioni universitarie - ricerca, didattica, alta formazione - che intersecandosi creano un luogo dinamico fortemente connotato.

Il Campus ha un’estensione di quasi 9 ettari. Il progetto riduce la volumetria complessiva dai 247.000 mc originari a 228.000 con un impianto che favorisce il ridisegno del Parco. Prevede 22.600 mq di s.l. di recupero e 13.300 mq di nuova costruzione per un totale dì 35.900 mq. La parte destinata a parco pubblico è di 31.700 mq. Le opere da realizzare ammontano a 75,5 milioni di €.

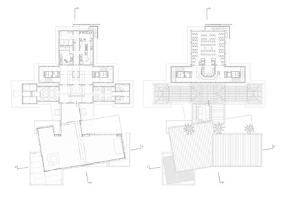
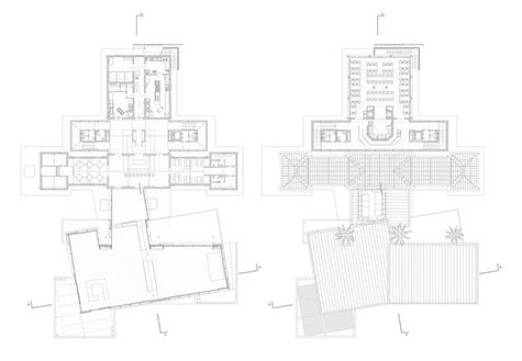
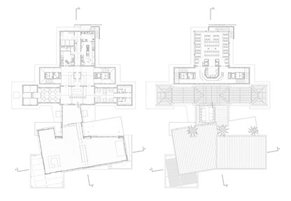
Campus Universitario di Forlì/Trefolo e Aule

2008-2014

La 2^ fase del Campus si compone di quattro elementi di nuova costruzione: i tre corpi destinati alla didattica e quello noto come “trefolo” ovvero la strada pedonale che serve i tre blocchi, contiene le sale studio per gli studenti e rappresenta la nuova spina dorsale del sistema universitario. E’ l’oggetto più complesso sia per la geometria sia per gli elementi costruttivi che lo costituiscono. La metafora architettonica del “trefolo” - ovvero un sistema dinamico tridimensionale che trae forza e flessibilità dalla intersezione dei cavi che lo compongono - evoca l’intersecarsi delle funzioni universitarie primarie: didattica, alta-formazione, ricerca. E’ la rappresentazione dell’essenza stessa dell’Università: un sistema in cui le tre componenti primarie si rafforzano a vicenda quando riescono a creare relazioni intense generando luoghi di incontro e scambio culturale e scientifico interdisciplinare.

E’ uno spazio volutamente anti-gerarchico concepito come una strada pedonale aperta alla città che, oltre a essere l’elemento connettivo principale del campus, ospita gli spazi studi di gruppo (7 sale per 232 posti) e individuale (239 posti) per un totale di 471 postazioni. Il rivestimento in acciaio riflettente ne accentua il carattere di “macchina” tridimensionale.

La didattica si articola in tre corpi autonomi per 2.700 studenti in 16 aule. Ciascun blocco di tre piani, è composto dall’incastro di due parallelepipedi a base trapezoidale, il più grande destinato alle aule e il più piccolo ai servizi, alle scale e, in copertura, agli impianti e al fotovoltaico. Un trattamento unitario di rivestimento contrapposto all’acciaio del “trefolo” - una “pelle” continua composta da doghe orizzontali frangisole distanziate in base all’incidenza dei raggi solari, realizzata con materiale di riciclaggio di legno e plastica - garantisce alle aule un illuminamento ottimale e, nel contempo, smaterializza questi volumi integrandoli nel parco.

Campus Universitario di Forlì/Caffetteria Eventi

2004-2014

La caffetteria/mensa universitaria e l’annesso spazio per eventi sono un tassello fondamentale del nuovo campus sia per la funzione di servizio lungamente attesa, sia per il ruolo strategico di punto di contatto tra città, studenti e Università. Vede il recupero dell’ex-lavanderia dell’ospedale, un padiglione isolato in un angolo suggestivo del parco. Lo spazio eventi che amplia il complesso è concepito come padiglione autonomo dove far musica, incontri culturali. La gestione diversificata tra mezzogiorno e sera consente, infatti, di farne un effettivo punto di produzione culturale e musicale rivolto a un pubblico giovanile molto più ampio di quello universitario divenendo, di fatto, un forte incentivo ad avvicinarsi all’università per strati della popolazione che ne sarebbero esclusi. Questa diverso carattere ha richiesto un’articolazione degli spazi capace di contemperare luoghi per attività ricreative, aree per ristorazione tradizionale a self-service, aree per consumo rapido a banco; il tutto con cucina in loco.

In origine il padiglione era composto da due corpi separati congiunti nel tempo da un terzo elemento. Il recupero ripropone, reinterpretandolo, l’impianto originario demolendo il corpo aggiunto intermedio e sostituendolo con un giunto vetrato che ospita collegamenti verticali e servizi. Prevede la riapertura delle grandi specchiature del primo piano dove le tende bianche evocano l’antica funzione di stenditoio. Un nuovo corpo, autonomo e trasparente, collegato al padiglione anteriore dal giunto vetrato degli ingressi, ospita lo spazio eventi.

Campus Universitario di Forlì/Padiglione Melandri

2006-2011

Il Padiglione Melandri in piazza Solieri era l’ingresso storico all’Ospedale. Ha subito nel tempo una serie di ampliamenti in “stile”, che ne hanno accentuato il ruolo di elemento rappresentativo di ingresso. Era composto da due piani e la parte centrale appartiene all’impianto originario del Tempioni (1913), mentre le due ali laterali e la copertura sono state realizzate in tempi successivi e unificate poi dalla facciata sulla piazza, prolungata sui due lati nello stesso stile della campata centrale originaria.

Nella riconversione generale del sistema ospedaliero in Campus universitario, il Padiglione mantiene la funzione di ingresso principale dal centro storico ed è il prologo alla “mainstreet”, la strada pedonale dorsale/decumano del sistema.

Accoglie funzioni direzionali: Segreteria, Direzione Amministrativa, Area Logistica, l’Ufficio Relazioni con il Pubblico; il Coordinamento di Polo, una sala di rappresentanza da circa 50 posti.

Il progetto ha previsto la sopraelevazione di un piano con un corpo vetrato largo quanto la parte originaria del padiglione.

In totale il Padiglione ristrutturato ha una superficie lorda di 1.900 mq per una volumetria complessiva di 8.760 mc.

Campus Universitario di Forlì/Dipartimento di Scienze Politiche

2002-2007

La 1^ fase del Campus ha interessato due padiglioni: il Morgagni dove sono stati realizzati i Laboratori Informatici/LABIC e il Dipartimento di Scienze Politiche e il Gaddi che ha accolto gli uffici. Come primo intervento ha consentito di verificare la metodologia di recupero applicata all’intero Campus. Il Padiglione Gaddi, infatti, appartiene all’impianto originario del ‘900 mentre il Morgagni è un’addizione coerente, realizzata in epoca fascista, come Maternità. Il progetto parte dal riconoscimento della configurazione originaria dei singoli padiglioni - intendendo per originari anche gli ampliamenti coerenti con il primo impianto - attraverso l’eliminazione delle addizioni improprie e il ripristino delle trasparenze tra i corpi. La connessione tra i due padiglioni viene demolita e ridisegnata come elemento trasparente, figurativamente autonomo, che li collega/separa restituendo a ciascuno la propria autonomia volumetrica.

Il secondo tema, declinato in maniera quasi didascalica, costituisce il cuore dell’intero progetto campus ed è la “riconquista” del seminterrato - un classico degli ospedali a padiglioni dove assolveva alla funzione di piano tecnico - come livello effettivo, illuminato correttamente, eliminandone il carattere claustrofobico e di servizio. Per ottenere questa “riemersione” si è modellato il terreno sia verso l’interno del campus sia verso la città. Verso il campus prevale la sistemazione del verde con piani inclinati a giardino mentre verso l’esterno la modellazione assume una connotazione più costruita simulando un movimento tettonico; affiorano strati di rocce artificiali che “disegnano” un sistema di rampe di ingresso agli edifici.

Credits

Raggruppamento vincitore del Concorso Internazionale in 2 fasi (1998-1999): Lamberto Rossi (capogruppo), Massimo Galletta, Roberto Lazzarini, Marco Tarabella, Paolo Zilli;

Consulenti: Giancarlo De Carlo (sistemi universitari); Giovanna Longhi con Angela Mosciarelli (paesaggio); Emilio Greppi (rilievo);

 

ATP Incaricata (2000-2007): Lamberto Rossi (capogruppo), Massimo Galletta, Roberto Lazzarini, Marco Tarabella, Paolo Zilli;

Consulenti: Giancarlo De Carlo (sistemi universitari); Giovanna Longhi con Angela Mosciarelli (paesaggio); Claudio Dolcini con Angelo Miretta (strutture); Proges Engineering Sas (strutture), Manens Intertecnica (impianti); Studio Tecnico Rivizzigno (impianti e prevenzione incendi); Carlo Carli (sicurezza), Alessandro Placci (acustica); Andrea Bassi (computi e contabilità); BC Building Consulting Srl (computi e contabilità);

 

ATI Incaricata (dal 2008): Lamberto Rossi (capogruppo), Marco Tarabella, Paolo Zilli (fino al 12.2012), Claudio Dolcini con Angelo Miretta (strutture), Proges Engineering Sas (strutture), Cogest Srl (direzione lavori), Carlo Carli (sicurezza)

Consulenti: Manens-Tifs spa (impianti); Bruno Versari e Claudio Orlati (direzione operativa per Manens-Tifs spa); Studio Tecnico Rivizzigno (impianti e prevenzione incendi); Alessandro Placci (acustica); BC Building Consulting Srl (computi e contabilità)

 

Hanno collaborato al progetto architettonico nelle varie fasi: Daniele Arcomano, Vincenzo Barillari, Iacopo Bernini, Paolo Carli Moretti, Claudia Cagneschi, Alberto Cattaneo, Gabriele Corbetta, Alberto Della Salandra, Maddalena Dossi, Maria Rosaria Favoino, Lucas Luzzi, Massimiliano Piccinini, Ilaria Pruneri, Michela Ricciotti, Massimo Sanzani, Maren Schmidt, Michele Stillittano

 

Responsabili Procedimento Comune di Forlì: Massimo Valdinoci, Gabrio Furani, Gianfranco Argnani

 

Responsabile Procedimento Università di Bologna: Andrea Braschi

 

Committenti: Comune di Forlì, Università degli Studi di Bologna, Ser.In.Ar. Soc.Cons.p.A.

© 2020 Lamberto Rossi Associati, via Telesio 17, 20145, Milano (MI), Italy - Diritti Riservati

Sito web creato da Giulia Margherita Bernardi (giuliam.bernardi@gmail.com)

© 2020 Lamberto Rossi Associati - Diritti Riservati

Sito web creato da Giulia Margherita Bernardi