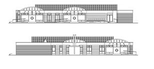
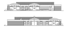
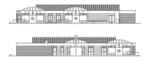
Scuola Materna a Fusignano, Ravenna

1992

La matrice compositiva della scuola nasce dalla sovrapposizione di un cerchio e di una trama ortogonale. Sono la metafora della perenne antinomia tra collettivo e individuale, tra socializzazione e sviluppo della persona, tra tradizione e progresso. Le attività comunitarie sono tenute assieme dalla curva del cerchio. I setti longitudinali, invece, ospitano le sezioni didattiche concepite come comunità autonome. La spina dorsale dell'organismo è un “corso” urbano in miniatura illuminato dall’alto.

Credits

Collaboratori: Enrico Farina, Sergio Iaquinta, Romeo Menarini

 

Strutture e impianti: Pio Farina

© 2020 Lamberto Rossi Associati, via Telesio 17, 20145, Milano (MI), Italy - Diritti Riservati

Sito web creato da Giulia Margherita Bernardi (giuliam.bernardi@gmail.com)

© 2020 Lamberto Rossi Associati - Diritti Riservati

Sito web creato da Giulia Margherita Bernardi