Nuovo Ospedale Galliera di Genova, Concorso Internazionale

2009

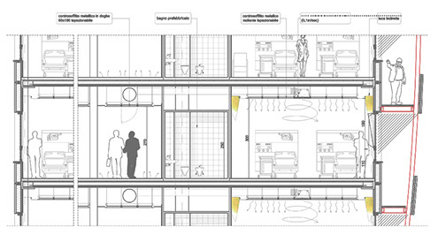
I temi della sostenibilità in un’accezione ampia e strettamente connessa all’idea di umanizzazione sono al centro di questa proposta di ospedale che coniuga un involucro edilizio altamente performante ad alta vivibilità con una gamma di soluzioni impiantistiche volte al risparmio energetico e all’utilizzo di fonti rinnovabili. L’integrazione tra questi obiettivi è dichiarata nella facciata a doppia pelle, un grande schermo concavo per tutta la porzione di edificio sottoposta a irraggiamento solare. Contiene i principali accorgimenti tecnologici e nel contempo ne connota figurativamente l’architettura. Particolare attenzione è stata posta anche nel controllo del rapporto tra superfici opache e vetrate.

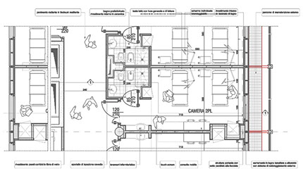
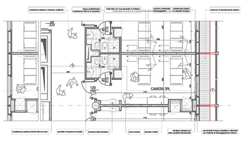
Tra le soluzioni proposte: tetti giardino intensivi con percorsi riabilitativi; pannelli pareti in legno altamente performanti e ecocompatibili; collettori solari termici a tubi sottovuoto integrati nella facciata per una efficace protezione dall’irraggiamento: sistema direttamente connesso agli accumuli e al sistema di assorbimento per la produzione di acqua refrigerata (solar cooling); pannelli fotovoltaici in vetro strutturale integrati nella facciata; gruppi frigo ad assorbimento, recupero termico e free cooling, cogenerazione costituita da motori a gas naturale a ciclo Otto; elementi radianti a soffitto e pavimento, operanti con acqua refrigerata a temperature prossime ai 15°C.

L’edificio proposto è classificato secondo l’indice di prestazione energetica A tendente ad A+.

Credits

Classificazione: 2° classificato

 

In ATI con: C. Lotti & Associati S.p.A. (Capogruppo); Lamberto Rossi Associati, ODB Architects, Progetto MCK S.r.l., T.H.E.M.A. S.r.l., Ing. Sandro Perrone

© 2020 Lamberto Rossi Associati, via Telesio 17, 20145, Milano (MI), Italy - Diritti Riservati

Sito web creato da Giulia Margherita Bernardi (giuliam.bernardi@gmail.com)

© 2020 Lamberto Rossi Associati - Diritti Riservati

Sito web creato da Giulia Margherita Bernardi