Accademia Stauffer a Cremona

2017-2020

La vita musicale cremonese ruota intorno a grandi esempi di mecenatismo moderno, tra questi: il Centro di Musicologia, costituito nel 1970, dall’industriale svizzero Walter Stauffer per favorire l’insegnamento della liuteria classica, degli strumenti ad arco e della musicologia. In questo contesto si inquadra l’acquisizione e il restauro di Palazzo Stradiotti come sede stabile della Accademia Stauffer, un’istituzione - completamente privata - di eccellenza mondiale, fondata nel 1985,che tiene corsi gratuiti di perfezionamento per esecutori di musica da camera solistica in violino, viola, violoncello e contrabbasso e dal 2012 per quartetto d’archi e vede tra gli altri i Maestri Accardo e Giuranna. Palazzo Stradiotti è stato scelto per la contiguità con Palazzo Raimondi, sede del Dipartimento di Musicologia dell’Università di Pavia e della Fondazione Stauffer, configurando così un Campus musicale di eccellenza mondiale.

 

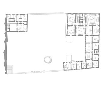
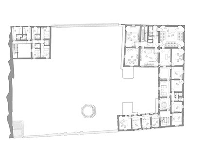
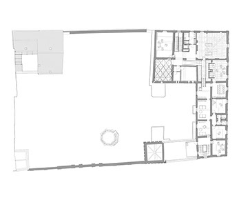
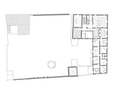
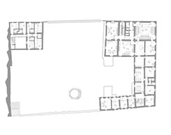
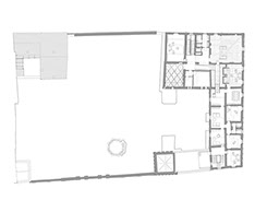
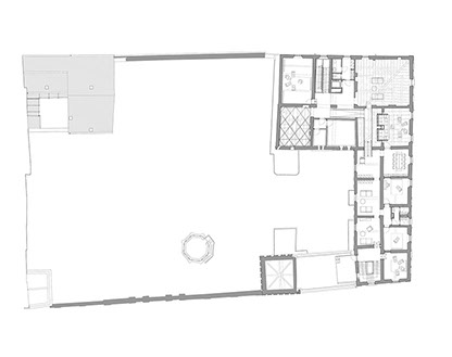
Il Palazzo, disposto a ferro di cavallo attorno alla corte, si affaccia su un giardino all’inglese di gusto romantico dove sono un 2° corpo di due piani, una coffee-house, un tempietto ottagonale rialzato su una collinetta artificiale con sottostante grottino. L’area a giardino/corte è di 1.550 mq; la superficie netta dei 3 corpi è di circa 1.700 mq. E’ un edificio stratificato riformato nell’Ottocento. L’aggiunta del corpo porticato di 3 piani e della scala(1860) - oltre al ridisegno del giardino secondo i canoni di un neoclassicismo diffuso non più appannaggio esclusivo dei ceti più abbienti - modificano profondamente impianto, linguaggio e rappresentatività del complesso. In questo senso Palazzo Stradiotti è esemplare del gusto di un epoca e di quel processo di “volgarizzazione” del neoclassico che coinvolge anche la media borghesia cremonese.

 

Il progetto individua nella riforma ottocentesca l’impianto da preservare/riscoprire. Dimensione degli ambienti e carattere “domestico”, sono idealmente riconducibili al movente originario della “musica da camera”: fare musica insieme, in famiglia, per il piacere di suonare e di rincontrarsi. E l’Accademia vuole essere proprio questo: un luogo di confronto/incontro tra perfezionandi solisti e quartetti, oggi separati in sedi differenti. L’ intervento è minimale - “reversibile” - un “arredo” complesso capace di soddisfare i requisiti ambientali - distribuzione, correzione acustica, climatizzazione, alimentazione - di un’accademia di musica. Tutto ruota intorno all’apparato di correzione acustica in doghe fresate di MDF, distanziato dalla muratura esistente per consentire di “accordare” ciascuna sala in base alle sue caratteristiche acustiche secondo due tipologie di spazi: per la Didattica (8) e per lo Studio individuale (10 piccole e 3 medie). Per le sale studio ricavate nell’ala dove erano le camere da letto, la correzione acustica è affidata a elementi a “baldacchino” che evocano la destinazione originaria.

Credits

Progettista Incaricato dal Centro di Musicologia Walter Stauffer: Lamberto Rossi Associati / Lamberto Rossi e Marco Tarabellaa

 

Consulenti: Lorenzo Jurina(Diagnostica e Strutture); Andrea Treu (Sicurezza e Prevenzione Incendi); Davide Bruzzone/ Consult Engineeringsnc (Impianti); Alessandro Placci (Acustica); Stefano Corbari (Progettazione; DO Edile); Paola Mainardi (Paesaggio); Roberto Mariotti (Geologia); RTC (Rilievo)

© 2020 Lamberto Rossi Associati, via Telesio 17, 20145, Milano (MI), Italy - Diritti Riservati

Sito web creato da Giulia Margherita Bernardi (giuliam.bernardi@gmail.com)

© 2020 Lamberto Rossi Associati - Diritti Riservati

Sito web creato da Giulia Margherita Bernardi